下载app免费领取会员
3.8通过小案例认识采暖系统
管道系统的选择及创建、添加散热器
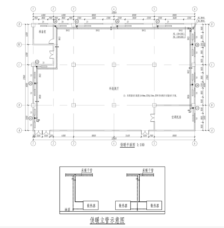
按照“供暖平面图”,选择相应的采暖系统、采暖管道的类型,添加阀门等管路附件。掌握采暖管道、立管的绘制方法,布置散热器。最后完成整个采暖系统模型的创建。如图3.8-1所示。

3.8-1
在“项目浏览器”中依次展开“族”——“管道”——“管道类型”。接着移动光标选中名称为“标准”的默认管道类型,单击鼠标右键选择“复制”命令,对其进行复制以创建副本。如图3.8-2所示。

3.8-2
然后移动光标至创建出来的副本上,单击鼠标右键选择“重命名”命令将其命名为题目中需要绘制的“采暖供水管”。以同样的方式,创建出“采暖回水管”。如图3.8-3所示。

3.8-3
展开“管道系统”分类,在默认的管道系统分类中找到“循环供水”和“循环回水”,将光标移动到“循环供水”,重复创建管道类型的方法,单击鼠标右键选择“复制”命令创建系统副本,接着对副本进行重命名,将其自定义为“采暖供水”系统。以同样的步骤,基于“循环回水”系统,将“采暖回水”系统也创建出来。如图3.8-4所示。

3.8-4
切换进入平面视图当中,单击“系统”选项卡,在“卫浴和管道”面板中单击“管道”工具,然后单击“属性”面板中的“类型选择器”下拉按钮,在下拉列表中选择“采暖供水管”。如图3.8-5所示。

3.8-5
在“属性”面板的机械设置分类中,单击“系统类型”参数栏的下拉按钮,在下拉列表中进行选择,将“系统类型”设置为“采暖供水”系统。如图3.8-6所示。

3.8-6
根据题目要求,在“放置/修改管道”选项栏中将“直径”设置为40mm,偏移值调整为0,在绘图区域“6-E”轴柱下方单击鼠标左键,以确定“采暖供水管”立管的起点位置。如图3.8-7所示。

3.8-7
确定了起点位置后,修改“修改/放置选项栏”中的“偏移”值,将其调整为6000,然后双击“应用”。如图3.8-8所示。

3.8-8
采暖供水管的立管绘制完成之后,将干管也绘制出来。按照图中标示的,将管道的“直径”调整为32mm,偏移值设置为4300mm,然后移动光标捕捉立管中点位置,单击鼠标左键确定干管起点位置。接着往左水平方向绘制到“2”轴附近,单击鼠标左键确定DN32的干管终点位置。如图3.8-9所示。

3.8-9
修改管径大小,根据题中标示的路径,将干管都绘制出来。
以同样的方法,将“管道类型”及“管道系统”都调整为“采暖回水”,干管的“偏移”值设置为4200,根据路径将采暖回水管也绘制出来。如图3.8-10所示。

3.8-10
将主管布置完成后,接着布置散热器。单击“插入”选项卡,选择“从族库中载入”面板中的“载入族”命令。如图3.8-11所示。

3.8-11
打开“载入族”对话框,双击打开“MEP”——“采暖”——“散热器”,在供暖立管示意图中可以获取到,需要布置的是上进下出的散热器。这里我们选择“散热器-铜铝复合-同侧-上进下出”的散热器,单击“打开”将它载入到项目中。如图3.8-12所示。

3.8-12
载入到项目中之后,单击“系统”选项卡下方“机械”面板中的“机械设备”工具,在“属性”面板的“类型选择器”中找到散热片高度为600mm的散热器。如图3.8-13所示。

3.8-13
根据题目要求,设置散热片片数及距地高度。以“准备室”的散热器为例,将“属性”面板中的“约束”分类下的“立面”调整为120,“尺寸标注”分类下的“数量”调整为20。如图3.8-14所示。

3.8-14
在“修改/放置机械设备”上下文选项卡中选择“放置在垂直面上”,被选中的命令将会高亮显示。然后移动光标至“准备室”,拾取墙边线进行放置散热器。如图3.8-15所示。

3.8-15
单击鼠标左键,将散热器布置在指定的位置上。可以看到,布置完成的散热器连接件方向朝左,而在这个位置需要布置的散热器连接件应该向右。如图3.8-16所示。

3.8-16
在“项目浏览器”中依次展开“机械”——“HVAC”——“立面”,然后双击“南-机械”进入南立面视图中。如图3.8-17所示。

3.8-17
双击鼠标滚轮,确定模型位置。选中刚刚布置的散热器,使用“Space”键对散热器进行翻转,散热器的连接件翻转到了右侧,但是进水口与出水口的位置也翻转,且散热器的参照面固定,立面位置根据主体发生了改变。如图3.8-18所示。

3.8-18
针对这个问题,用户可以选择“编辑族”对族进行修改,也可以载入一个“散热器-铜铝复合-同侧-下进上出”散热器进行布置,将它布置在指定位置进行翻转,然后调整立面高度,使其处于距地120mm的正确位置上。如图3.8-19所示。

3.8-19
然后切换至“1-机械”平面图中,将连接“L04”立管的另一个散热器给布置进来,在这个位置需要使用“散热器-铜铝复合-同侧-上进下出”的散热器进行布置。如图3.8-20所示。

3.8-20
本文版权归腿腿教学网及原创作者所有,未经授权,谢绝转载。
上一篇:BIM等级考试二级设备考试图文教程3.7通过小案例认识空调系统
下一篇:BIM等级考试二级设备考试图文教程3.8通过小案例认识采暖系统(下篇)
推荐专题