下载app免费领取会员
3.7通过小案例认识空调系统
系统选择、吊顶式、盘管式
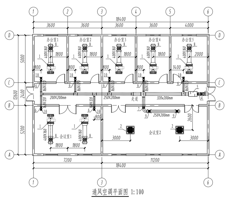
接着上一节内容,按照“通风空调平面图”,选择相应的风管系统、风管类型,添加阀门、多联机等构件。掌握空调管道、立管的绘制方法,添加相关设备。最后完成整个空调系统模型的创建。如图3.7-1所示。

3.7-1
题中“标示1”所标示的是风机盘管。单击“系统”选项卡下方“机械”面板中的“机械设备”工具。如图3.7-2所示。

3.7-2
在“属性”面板中单击“类型选择器”下拉按钮,在下拉列表中选择合适的风机盘管进行布置。将光标移动到绘图区域中,使用“Space”键翻转风机盘管的工作面,找到正确的工作面后单击鼠标左键将风机盘管布置在平面视图当中。如图3.7-3所示。

3.7-3
单击选中布置好的风机盘管,然后单击出风口连接件进行创建风管,将风管的“系统类型”设置为“送风”,调整“修改/放置风管”选项栏中的“偏移”值,将风管与风机盘管调整到3700mm的高度上。如图3.7-4所示。

3.7-4
根据题目要求,单击风机盘管送风管,调整风管中心线距墙距离的尺寸标注长度,将其调整到指定位置上。如图3.7-5所示。

3.7-5
在风机盘管的出风口处,需要布置弹性连接件。单击“插入”选项卡下方“从库中载入”面板中的“载入族”命令,依次双击打开“MEP”——“风管附件”,在族库中找到“弹性连接件-矩形”,然后单击“打开”将其载入到项目中。如图3.7-6所示。

3.7-6
单击“系统”选项卡下方“HVAC”面板中的“风管附件”工具,接着单击“属性”面板中“类型选择器”下拉按钮,在下拉列表中找到“弹性连接件-矩形”。移动光标,拾取送风管中心线,然后单击鼠标左键,将弹性连接件布置在送风管上。如图3.7-7所示。

3.7-7
调整风管及弹性连接件,将其移动到合适的位置上。
单击“系统”选项卡下“HVAC”面板中的“风管”工具,根据题目要求调整“修改/放置风管”选项栏中的“宽度”、“高度”及“偏移”值,分别设置为400mm、160mm和3700mm。将“属性”面板中的“系统类型”设置为“送风”,然后在指定位置绘制出来。如图3.7-8所示。

3.7-8
题中“标示8”所标示的是240mmx240mm的双层风口。单击“系统”选项卡下方“HVAC”面板中的“风道末端”工具。如图3.7-9所示。

3.7-9
在“属性”面板中单击“类型选择器”下拉按钮,在下拉列表中选择已有的双层风口类型,单击“编辑类型”按钮打开“类型属性”对话框。对当前的风口类型进行“复制”,命名为需要布置的风口类型尺寸,单击“缺点”。接着将“尺寸标注”中的相关参数修改为指定大小,单击“确定”完成编辑。如图3.7-10所示。

3.7-10
切换至“修改/放置风道末端”上下文选项卡中,单击“布局”面板中的“风道末端安装到风管上”命令,当命令高亮显示即为启用,将设置完成的双层送风口布置在题目要求的位置上。如图3.7-11所示。

3.7-11
框选布置完成的模型,使用“修改/选择多个”上下文选项卡功能区中的“复制”工具,单击鼠标左键确定移动起点,接着移动光标至指定位置再次单击鼠标左键完成复制命令。如图3.7-12所示。

3.7-12
同样的,使用“镜像”工具,将绘制完成的模型进行镜像,复制到指定的位置上。框选布置完成的模型,使用“修改/选择多个”上下文选项卡功能区中的“镜像-拾取轴”工具,移动鼠标拾取墙中心线作为对称轴,单击鼠标左键完成复制命令。如图3.7-13所示。

3.7-13
按照上述方法,将剩余部分创建出来。如图3.7-14所示。

3.7-14
题中“标示2”所标示的是吊顶暗装风机盘管。单击“插入”选项卡下方“从族库中载入”面板中的“载入族”命令,依次双击打开“MEP”——“空气调节”——“风机盘管”,在族库中找到“风机盘管-吊顶暗装”,单击“打开”将其载入到项目中。如图3.7-15所示。

3.7-15
单击“系统”选项卡下“机械”面板中的“机械设备”工具,在“属性”面板的“类型选择器”中找到“风机盘管-吊顶暗装”类型的风机盘管,将“偏移”值设置为3700,然后布置在指定位置上。如图3.7-16所示。

3.7-16
绘制完成后,切换至三维视图当中。如图3.7-17所示。

3.7-17
本文版权归腿腿教学网及原创作者所有,未经授权,谢绝转载。
上一篇:关于发布“青县吉祥云玺前期物业服务项目中标公告”的公示公告
下一篇:BIM等级考试二级设备考试图文教程3.8通过小案例认识采暖系统(上篇)
推荐专题