下载app免费领取会员
来源丨益埃毕教育
利用Navisworks等软件对方案模型做实时漫游,可以在漫游虚拟现实演示系统中自由行走、任意观看,冲击力强,能获得身临其境的真实感受,弥补因缺乏对传统建筑图纸的理解能力而造成和设计师之间的交流鸿沟。
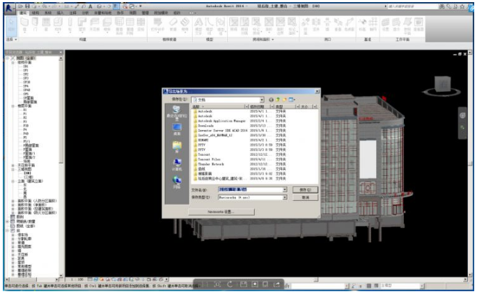
在Revit软件中将建筑模型导出成nwc格式文件,如图所示。

利用视点功能,设置人物位置、视角,在建筑模型中进行虚拟漫游,可以身临其境的真实感受建筑内部空间信息,如图所示。

将BIM模型导入到3Dmax中,通过材质编辑器,导入无缝贴图材质,将材质逐步添加至墙、柱、梁、板等部位,使模型跟真实的建筑一致,如图所示。


编辑模型并拆分和重组模型,将各部位分类,使模型能够更方便制作动画,如图所示。

通过建模功能制作场地

熟练运用切片命令,根据施工进度图的实践节点制作动画后调整时间轴,调整动画整体节奏,如图所示。

加入摄像机,调整焦距并在时间轴线上制作摄像机的运动轨迹动画,如图所示。

导入灯光,并分别调整光源的参数,达到真实效果并调整光线位置,灯光的位置一般根据摄像机位置进行调整,如图所示。

调整所需视频大小的参数及图片格式进行渲染,如图所示。

把渲染后的JPG图片导入Promiere合成软件进行合成,如图所示。


导出成AVI格式后生成视频

总结:
3dsMax技术设计师建筑相关行业未来的发展趋势,也是建筑设计工作的基本要求。制作电脑效果图是建筑设计人员、室内外装潢设计人员必修掌握的一种技能。电脑效果图,有助于设计方案的完善以及工程方案的竞标,它可以向建筑承建单位、施工单位以大众表达设计者的意图,同时也可以展示预测建筑完成后的实际效果。
近日,有一款名为BIM-FILM的BIM虚拟施工软件,也可以进行动画漫游以及模拟,还是免费下载,想要体验这个漫游功能的,可以去尝尝鲜。
本文版权归腿腿教学网及原创作者所有,未经授权,谢绝转载。
下一篇:CAD教程 | 如何优化CAD2023中的建筑单位模式设置
推荐专题