下载app免费领取会员
等分功能让我们能快速地等分多个图元,但是在编辑等分的标注时却并不是那么简单,因为等分是一个约束,一般情况下边界的位置会随着等分的编辑而变化,邻近的不需要变化的图元也就跟着变化,这就不是我们想要的结果了。以下面模型为例:

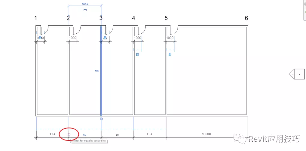
我简单地建了几个房间,并添加了几个标注,一个是门中心与墙的距离约束为1m,墙1-5约束为等分,最右侧5和6墙间的距离为10m(未约束)。
这种时候,当我移动等分约束的墙时,可以看到10m的数值有时会发生变化,有时却又不会。这是什么情况呢?

向右移动墙1,可以看到墙5位置不变,10m数值不变。

向右移动墙2,可以看到墙1位置不变,10m数值变化。

向右移动墙3,可以看到墙2位置不变,10m数值变化。

向右移动墙4,可以看到墙5位置不变,10m数值变化。

向右移动墙5,可以看到墙1位置不变,10m数值变化。
仔细观察对比这几张图,移动时,位置不变的墙有什么特性?
主要秘密在于下图中的这个锚点(AnchorPoint),看Revit弹出的功能介绍就可以看出,这个是等分约束的锚点。锚点位置就是等分约束的基准位置。

所以为了不改变周边房间——即墙5和6之间的房间,我们需要将锚点设置在墙5的位置。选中等分约束的墙,锚点出现后直接拖拽该锚点到5位置,然后再将墙移动相关等分的数值即可。
当然也可以将墙5和6之间的10m锁住,使其一直约束为10m,也可以实现相应的结果。但这样可能就会影响外墙或者另外相邻的房间(如果有的话),所以并不建议。
Revit中文网作为国内知名BIM软件培训交流平台,几十万Revit软件爱好者和你一起学习Revit,不仅仅为广大用户提供相关BIM软件下载与相关行业资讯,同时也有部分网络培训与在线培训,欢迎广大用户咨询。
网校包含各类BIM课程320余套,各类学习资源270余种,是目前国内BIM类网校中课程最有深度、涵盖性最广、资源最为齐全的网校。网校课程包含Revit、Dynamo、Lumion、Navisworks、Civil 3D等几十种BIM相关软件的教学课程,专业涵盖土建、机电、装饰、市政、后期、开发等多个领域。
需要更多BIM考试教程或BIM视频教程,可以咨询客服获得更多免费Revit教学视频。
本文版权归腿腿教学网及原创作者所有,未经授权,谢绝转载。
上一篇:Revit技巧 | revit三维中怎么看阶梯剖面?Revit中如何创建阶梯剖面
下一篇:Revit技巧 | Revit如何中快速切换到楼层三维视图?
推荐专题