下载app免费领取会员
购买网站VIP 年会员和终生会员可以学习网站完整课程体系,同时可以加入年会有群有老师进行技术解答!
客服微信:ttw0617
客户电话:15359439502
1、有Revit基础操作的同学
2、想学习MEP建模及工作流程的同学
Revit三合一版本2016,除了课件你用低版本打不开外,从知识角度去学习低版本也没有任何问题
适合版本为:2012~2016
课程需要对你Revit有基础的操作认识,课程以流程体验基础知识带你认识MEP,以小案例带你领略MEP的工作流程模式!
01 Revit MEP软件说明
02 Revit MEP可以做哪些事情?
03 如何选择项目建模方式?
04 如何选择默认自带项目样板?
05 Revit MEP软件界面简单说明及一些常见问题
06 Revit MEP常用建模流程
07 流程体验:创建项目、风管设置
08 流程体验:链接建筑文件及显示设置
09 流程体验:创建标高及视图
10 流程体验:设置视图组织及规程
11 流程体验:布置设备
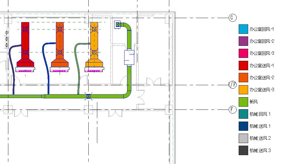
12 流程体验:绘制项目风管及设置系统类型(送风)
13 流程体验:绘制项目风管及设置系统类型(回风)
14 流程体验:绘制项目风管及设置系统类型(新风)
15 流程体验:添加视图过滤器
16 流程体验:添加风管图例
17 课程总结

