添加老师微信免费领取价值599元资料包

跳过,直接下载
完善主体资料,免费赠送VIP会员!
* 主体类型
* 企业名称
* 信用代码
* 所在行业
* 企业规模
* 所在职位
* 姓名
* 所在行业
* 学历
* 工作性质
请先选择行业
您还可以选择以下福利:
行业福利,领完即止!

下载app免费领取会员

NULL
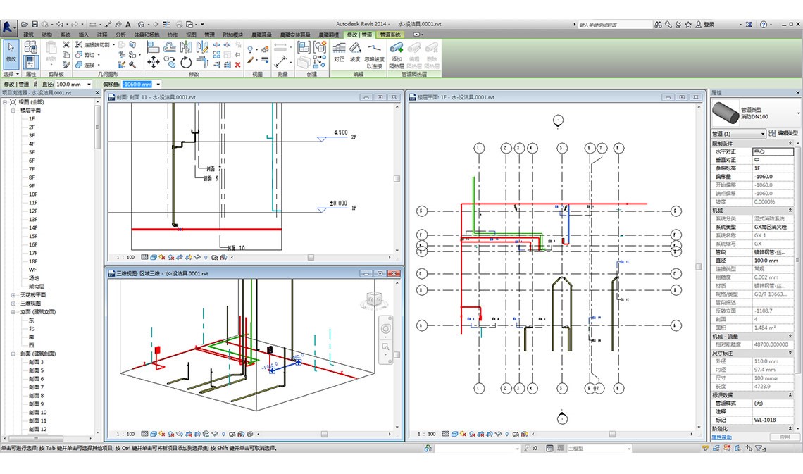
晨曦BIM算量【安装】For Revit

晨曦BIM算量【安装】For Revit

插件厂商:晨曦

收费类型:收费(试用期15天)

主要功能:基于revit平台二次开发的安装算量软件充分结合了国内各地的算量规则进行算量

插件版本:2.0

插件官网: 点击访问

点击下载 查看密码

解压密码/提取码:0

若是百度网盘下载默认解压密码:www.tuituisoft.com

观看教程 立即采购

晨曦BIM算量【安装】For Revit简介

ad.jpg

一键加入BIM造价技术交流群


软件特点

01 指导施工

各专业管线的位置、标高、连接方式及施工工艺先后进行三维模拟,按照现场可能发生的工作面和碰撞点进行方案的调整,实现方案的可施工性。

02 碰撞检查

动态漫游三维模型模拟施工过程,各专业图形进行组合,快速检查碰撞,计算准确度高


03 模拟手工

计算式模拟人脑思维,完全脱离软件给审核方按设计图纸查阅,突破安装算量软件对账难的技术瓶颈


04 视图控制

为解决Revit视图操作复杂的问题,可通过局部三维和区域三维进行显示控制


05 报表系统

报表功能强大,核、对、出量随心所欲





60acb4e0ef112.png
HiBIM场布V1.3.1最新版免费下载

HiBIM场布V1.3.1最新版免费下载

品茗HiBIM软件V4.1.0最新版下载

品茗HiBIM软件V4.1.0最新版下载

酸葡萄市政BIM助手V 1.77 For Revit

酸葡萄市政BIM助手V 1.77 For Revit

水利BIM造价插件(牛立军)

水利BIM造价插件(牛立军)

Revit插件-ModPlus插件库

Revit插件-ModPlus插件库

Geotechnical Module For Civil 3D(岩土勘察地质插件)

Geotechnical Module For Civil 3D(岩土勘察地质插件)

比程钢筋算量-基于Revit的钢筋算量插件

比程钢筋算量-基于Revit的钢筋算量插件

斯维尔BIM三维算量 2018 For Revit

斯维尔BIM三维算量 2018 For Revit

海迈BIM量价一体化插件(海迈 For Revit)

海迈BIM量价一体化插件(海迈 For Revit)

晨曦工程计价2017

晨曦工程计价2017

晨曦BIM安装算量For Revit

晨曦BIM安装算量For Revit

晨曦BIM算量【土建钢筋】For Revit

晨曦BIM算量【土建钢筋】For Revit

晨曦BIM算量【安装】For Revit

晨曦BIM算量【安装】For Revit