下载app免费领取会员
1)灰色高级外墙涂料的编辑,按快捷键W+A,进入编辑模式,单击“编辑类型”按钮,在弹出的对话框中单击“复制”按钮,在弹出的对话框中命名“灰色高级外墙涂料-50mm”,单击“确定”按钮。单击“编辑”按钮设置参数,详见图2.12-11所示。

图2.12-11 材质参数的修改
2)将墙厚设置为“50”点击材质,在弹出的材质浏览器中输入“灰色”选择“灰色高级外墙涂料”详见图2.12-12所示。

图2.12-12 材质的修改
3)灰色高级外墙涂料绘制,将楼层平面置于2F层,详见图2.12-1所示,按快捷键W+A,进入编辑模式,将绘制方法修改为“直线”,在属性框中选择“灰色高级外墙涂料-50mm”,将“底部约束”改为“2F”、“底部偏移”改为“-1410”、“顶部约束”改为“2F”、“顶部偏移”改为“0”详见图2.12-13所示。

图2.12-13 绘制灰色高级外墙涂料参数修改
4)参数设置完后,依次捕捉图2.12-14所示位置,按进入3D视图,详见图2.12-15所示。

图2.12-14 灰色高级外墙涂料绘制捕捉

图2.12-15 3D效果图
5)白色高级外墙涂料的编辑,按快捷键W+A,进入编辑模式,单击“编辑类型”按钮,在弹出的对话框中单击“复制”按钮,在弹出的对话框中命名“白色高级外墙涂料-50mm”,单击“确定”按钮。单击“编辑”按钮设置参数,详见图2.12-16所示。

图2.12-16 材质参数修改
6)将墙厚设置为“50”点击材质,在弹出的材质浏览器中输入“白色”选择“白色高级外墙涂料”详见图2.12-17所示。

图2.12-17 材质的修改
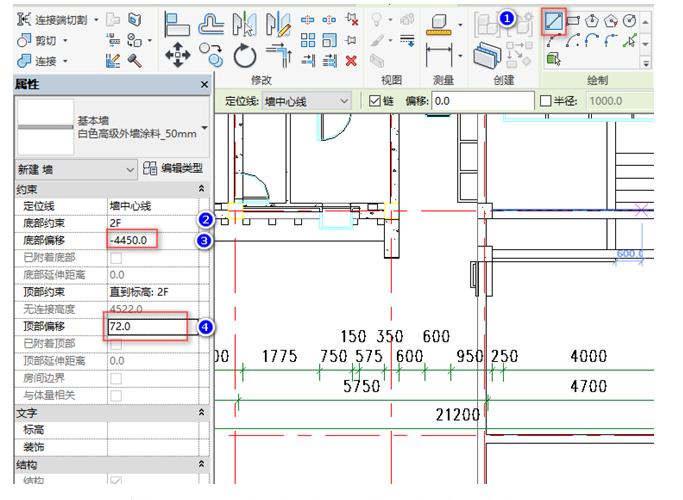
4)白色高级外墙涂料绘制,将楼层平面置于2F层,详见图2.12-1所示,按快捷键W+A,进入编辑模式,将绘制方法修改为“直线”,在属性框中选择“白色高级外墙涂料-50mm”,将“底部约束”改为“2F”、“底部偏移”改为“-4450”、“顶部约束”改为“2F”、“顶部偏移”改为“72”详见图2.12-18所示。

图2.12-18 绘制白色高级外墙涂料参数修改
5)参数设置完后,依次捕捉图2.12-19所示位置,按进入3D视图,详见图2.12-20所示。

图2.12-19 白色高级外墙涂料绘制捕捉

图2.12-20 3D效果图
6)木质的编辑,按快捷键W+A,进入编辑模式,单击“编辑类型”按钮,在弹出的对话框中单击“复制”按钮,在弹出的对话框中命名“木质贴墙”,单击“确定”按钮。单击“编辑”按钮设置参数,详见图2.12-21所示。

图2.12-21 木质材质参数修改
7)将墙厚设置为“50”点击材质,在弹出的材质浏览器中输入“木”选择“木板贴墙”详见图2.12-22所示。

图2.12-22 木质材质修改
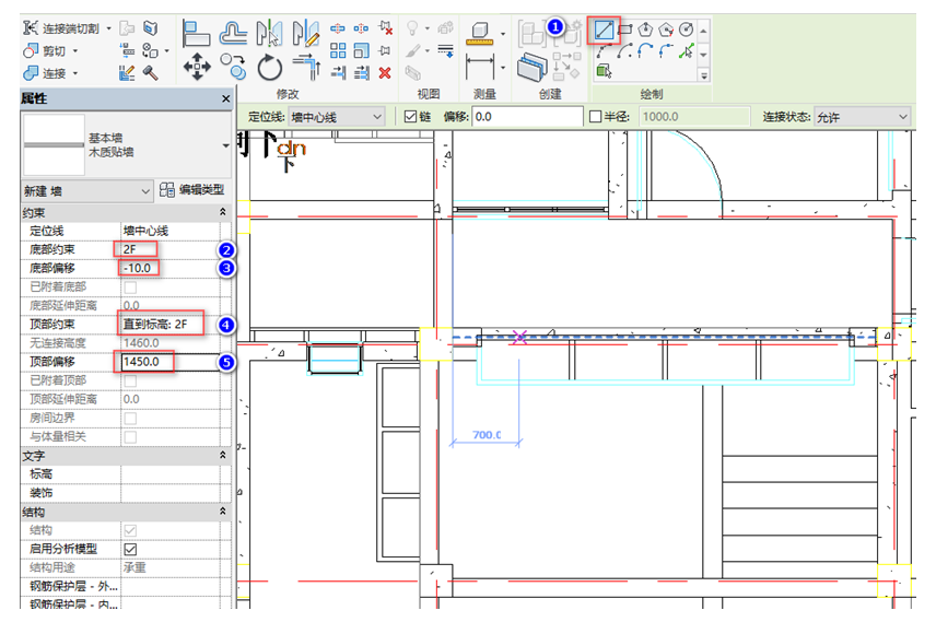
8)木质贴墙的绘制,将楼层平面置于2F层,详见图2.12-1所示,按快捷键W+A,进入编辑模式,将绘制方法修改为“直线”,在属性框中选择“木质贴墙”,将“底部约束”改为“2F”、“底部偏移”改为“-10”、“顶部约束”改为“2F”、“顶部偏移”改为“1450”详见图2.12-23所示。

图2.12-23 参数修改
9)参数设置完后,依次捕捉图2.12-24所示位置,按进入3D视图,详见图2.12-25所示。

图2.12-24 木板贴墙的捕捉

图2.12-25 3D效果图
10)根据以上步骤将其他幕墙绘制完成。详见图2.10-26所示。

图2.12-26 3D效果图
转载请注明来源本文地址:https://www.wanbim/bim/249852.html
上一篇:没有了
下一篇:没有了