下载app免费领取会员
一幢建筑物通常是由若干个单位空间有机地组合起来而形成的整体空间。在进行建筑设计时,往往会使用各层平面图来分析建筑物的各种特征,并通过相应的图示来表达设计意图。建筑平面设计包括单个的房间平面设计和各部分的组合设计。Revit的优点就在于可以自动生成各房间的大样图,这样可以提高设计工作效率。
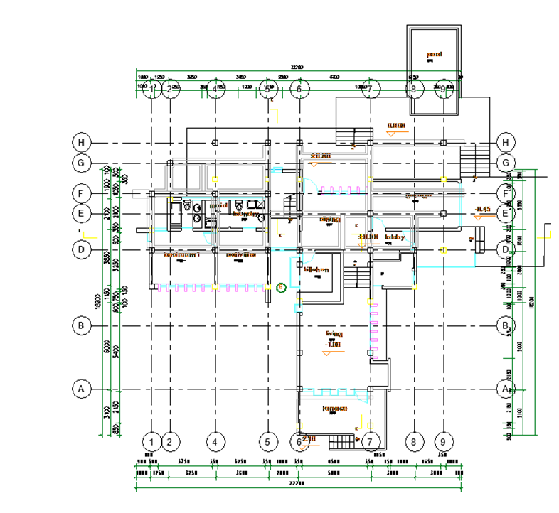
一层平面是最重要的平面图,因为其与基地的地坪直接联系、建筑中个出入口绝大部分都在一层平面,是场地设计与平面设计相结合的一个区域。
Revit的墙体设计非常重要,其不仅是建筑的分隔主体,而且也是门窗、墙饰体与分割线、卫浴灯具等设备的承载主体。墙体构造层设置及其材质设置,不仅影响着墙体在三维、透视和立面透视中的外观表现,更直接影响着后期施工图设计中墙体大样节点详图等视图中墙体截面的显示。
Revit提供了墙工具,用于绘制和生成墙体对象,Revit中的墙体属性系统族,可以指定的墙体结构参数定义生成三维墙体模型,其提供了基本墙、幕墙和叠层墙3种不同的墙族。在Revit中创建墙体时,首先需定义好墙体类型—包括墙命名、墙厚、材质、做法、功能等,再确定墙体的平面位置、高度等参数。
1)打开项目文件。单击“打开”按钮,在弹出的对话框中打开保存的文件,或者直接单击“历史项目”栏,详见图2.7-1所示。

图2.7-1打开项目
2)在项目浏览器中点击楼层平面图中的“1F”平面视图,在插入选项卡中点击“链接CAD”将我们已经清理好的CAD图纸中的“B4型一层平面”导入我们的“1F”平面视图当中,在导入时将“仅当前视图(u)”勾选,“导入单位(s)”改为毫米,“定位(p)”选择中心到中心,详见图2.7-2所示。

图2.7-2导入CAD图
3)按快捷键A+L调整CAD图位置与墙对齐,详见图2.7-3所示。使用移动过程中将两个对应的柱对齐后,导入的CAD图就与原有的墙对齐了,详见图2.7-4所示。

图2.7-3调整CAD文件位置

图2.7-4 调整完的界面
注意:调整CAD文件位置时,遇到没有轴网的CAD图纸时可以选择柱与柱的对齐方式。
4)设置墙体参数,按快捷键W+A,进入编辑模式,单击“编辑类型”按钮,在弹出的对话框中单击“复制”按钮,在弹出的对话框中命名“非承重多孔砖-350mm”,单击“确定”按钮。单击“编辑”按钮设置参数,将墙厚设置为350,详见图2.7-5所示。

图2.7-5 设置非承重多孔砖墙参数
5)将墙厚度修改为“350mm”点击材质选择“多空砖”详见图2.7-6所示。

图2.7-6 多空砖材质修改
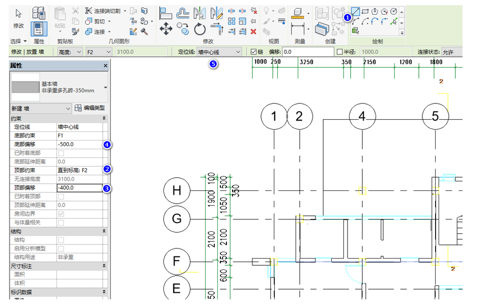
1)绘制F轴线交“1”轴线的外墙。将楼层平面置于1F层,详见图2.7-7所示,选择“建筑”"“墙”"“墙:建筑”命令,也可以直接按快捷键W+A。选择“非承重多孔砖-350mm ”的墙,将墙的绘制方法改为“直线”绘制方式,设置属性栏中的“顶部约束”为“2F”,设置“顶部偏移”为“-400”及“底部偏移”为“-500”,设置“定位线”为“墙中心线”详见图2.7-8所示。

图2.7-7 楼层平面至1F层

图2.7-8 外墙绘制参数设置
2)参数设置完后,依次捕捉图2.7-9所示位置,按进入3D视图,详见图2.7-10所示。


图2.7-9 外墙绘制捕捉 图2.7-10 3D效果图
按墙体在建筑中的位置和走向分类:分为外墙和内墙两类。沿建筑四周边缘布置的墙体称为外墙,被外墙包围的墙体称为内墙。
内墙,指在室内起分隔空间的作用,没有和室外空气直接接触的墙体,多为“暖墙”。
1)打开“基本墙”族。选择“建筑”"“墙”"“墙:建筑”命令,也可以直接按快捷键W+A。选择“基本墙”族,在“属性”面板中选择“基本墙”"“非承重多孔砖-350mm”详见图2.7-11所示。

图2.7-11 编辑内墙
2)单击“编辑类型”按钮,在弹出的对话框中单击“复制”按钮,在弹出的对话框中“非承重多孔砖-350mm”修改为“加气混凝土砌块200mm”详见图2.7-12所示,单击“确定”按钮。单击“编辑”按钮设置参数,将墙厚设置为200mm,详见图2.7-13所示。

图2.7-12 设置加气混凝土砌块墙参数

图2.7-13设置墙体厚度
1)绘制D轴线到F轴线交“4”轴线的内墙。将楼层平面置于1F层,详见图2.7-14所示,选择“建筑”"“墙”"“墙:建筑”命令,也可以直接按快捷键W+A。选择“加气混凝土砌块200mm ”的墙,将墙的绘制方法改为“直线”绘制方式,设置属性栏中的“顶部约束”为“2F”,设置“顶部偏移”为“-400”及“底部偏移”为“-500”,设置“定位线”为“墙中心线”详见图2.7-15所示。

图2.7-14楼层平面至1F层 图2.7-15 内墙绘制参数设置
2)参数设置完后,依次捕捉图2.7-16所示位置,按进入3D视图,详见图2.7-17所示。

图2.7-16 内墙绘制捕捉 图2.7-17 3D效果图
所谓卫生间导墙,就是在浇筑卫生间(或厨房)混凝土板面是,同时(吊模)浇筑混凝土导墙,一般与墙同宽,高200,起到防水作用,卫生间和厨房的砌体在此混凝土上开始砌筑。其名称应为“厨卫生间防水砼翻边”。
1)在楼层平面“2F”快捷键V+V,点击“导入的类别”将“二层楼面梁平面整体配筋图.dwg”、“二层楼面结构平面布置图.dwg”勾选取消点击“确定”详见图2.7-18所示。将导入的“二层楼面梁平面整体配筋图.dwg”、“二层楼面结构平面布置图.dwg”CAD图纸隐藏。

图2.7-18 CAD图纸隐藏
2)在项目浏览器中点击楼层平面图中的“2F”平面图,在插入选项卡中点击“链接CAD”将我们已经清理好的CAD图纸中的“B4型二层平面”导入我们的“2F”平面图当中,在导入时将“仅当前视图(u)”勾选,“导入单位(s)”改为毫米,“定位(p)”选择中心到中心,详见图2.7-19所示。

图2.7-19导入CAD图
3)按快捷键M+V调整CAD图位置与墙对齐,详见图2.7-20所示。使用移动过程中将两个对应的柱对齐后,导入的CAD图就与原有的墙对齐了,详见图2.7-21所示。

图2.7-20 调整CAD文件位置

图2.7-21 调整完的界面
4)设置墙体参数,按快捷键W+A,进入编辑模式,单击“编辑类型”按钮,在弹出的对话框中单击“复制”按钮,在弹出的对话框中命名“素混凝土200mm”,单击“确定”按钮。单击“编辑”按钮设置参数,将墙厚设置为200,详见图2.7-22所示。

图2.7-22 设置卫生间素混凝土材质参数
5)将墙厚度修改为“200mm” 点击材质在材质搜寻框中输入“混凝土”选择“素混凝土”详见图2.7-23所示。

图2.7-23素混凝土材质修改
1)绘制D轴线交“4”以“5”轴线间的卫生间导墙。将楼层平面置于2F层,详见图2.7-24所示。

图2.7-24 楼层平面至2F层
2)选择“建筑”"“墙”"“墙:建筑”命令,也可以直接按快捷键W+A。选择“素混凝土-200mm”的墙,将墙的绘制方法改为“直线”绘制方式,设置属性栏中的“顶部约束”为“2F”,设置“顶部偏移”为“200”及“底部偏移”为“0”,设置“定位线”为“墙中心线”详见图2.7-25所示。

图2.7-25 卫生间导墙绘制参数设置
3)参数及设置完后,依次捕捉图2.7-26所示位置,按进入3D视图,详见图2.7-27所示。

图2.7-26 卫生间导墙绘制捕捉 图2.7-27 3D效果图
1)打开“基本墙”族。选择“建筑”"“墙”"“墙:建筑”命令,也可以直接按快捷键W+A。选择“基本墙”族,在“属性”面板中选择“基本墙”"“非承重多孔砖-350mm”详见图2.7-28所示。

图2.7-28 编辑阳台栏板
2)单击“编辑类型”按钮,在弹出的对话框中单击“复制”按钮,在弹出的对话框中“非承重多孔砖-350mm”修改为“非承重多孔砖-100mm”详见图2.7-29所示,单击“确定”按钮。单击“编辑”按钮设置参数,将墙厚设置为100mm,详见图2.7-30所示。

图2.7-29 设置非承重多孔砖参数

图2.7-30 设置墙体厚度
1)将楼层平面置于2F层,详见图2.7-24所示,选择“建筑”"“墙”"“墙:建筑”命令,也可以直接按快捷键W+A。选择“非承重多孔砖-100mm”的墙,将墙的绘制方法改为“直线”绘制方式,设置属性栏中的“顶部约束”为“2F”,设置“顶部偏移”为“1000”及“底部偏移”为“-50”,设置“定位线”为“墙中心线”详见图2.7-31所示。

图2.7-31 阳台栏板绘制参数设置
2)参数及设置完后,依次捕捉图2.7-32所示位置,按进入3D视图,详见图2.7-33所示。

图2.7-32 阳台栏板绘制捕捉 图2.7-33 3D效果图
3)参照上述步骤完成其余墙的绘制,注意墙边界位置、厚度以及跨方向。完成所有楼墙后,按进入3D视图,详见图2.7-34所示。

图2.7-34 3D效果图
压顶是指砌筑墙体顶部(如果上面再没有其他结构)浇筑的50到100mm厚的混凝土结构,压住墙顶防止墙顶砌块(如砖)因砌筑砂浆风化或遭震动(如风力或地震)、碰撞而松动掉落。在重力式板顶上或将砌块石防汛墙顶上现浇一块条形(钢筋)砼为压顶,其作用是增强结构整体性。
1)选择“结构”"“梁”在属性栏中选择“混凝土-矩形梁”,单击“编辑类型”按钮,在弹出的对话框中单击“复制”按钮,在弹出的对话框中“70×180”修改为“100×100”点击确定,再将尺寸标注b改为100、h改为100,详见图2.7-35所示。

图2.7-35 压顶参数修改
2)将楼层平面置于2F层,详见图2.7-24所示,选择“结构”"“梁”命令,也可以直接按快捷键B+M。选择“混凝土-矩形梁100×100”的梁,将梁的绘制方法改为“直线”绘制,设置“Z轴偏移值”为“1100”详见图2.7-36所示,参数及设置完成后,依次捕捉图2.7-37所示位置,按 进入3D视图,详见图2.7-38所示。

图2.7-36 压顶绘制参数设置

图2.7-37 压顶绘制捕捉

图2.7-38 3D效果图
3)参照上述步骤完成女儿墙上压顶绘制,注意墙边界位置、厚度以及跨方向。完成女儿墙上压顶后,按进入3D视图,详见图2.7-39所示。

图2.7-39 3D效果图
转载请注明来源本文地址:https://www.wanbim/bim/249818.html
上一篇:没有了
下一篇:没有了