如何通过Revit批量导出CAD图纸?需要哪些操作?
这个通过Revit批量导出CAD图纸操作是很多使用的朋友一直想学会的,之前有机会看到,操作起来也跟方便,决定分享出来,虽然步骤跟简洁,但是能解决一定的问题,你get了么?
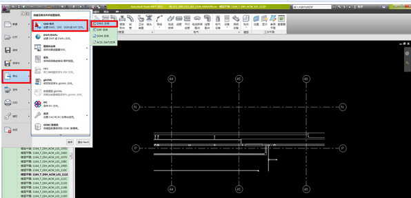
步骤一很是简单,在revit中如下图操作一下即可。

步骤二是接着上一步来说,选择“任务中的视图/图纸集”,你清楚的同样看下图,你就知道点击哪里了。

步骤三个和步骤二异曲同工之妙哦,选择“模型中的所有视图的和图纸”,操作点击步骤如下图。

步骤四就是根据你的需求来的啦,想要什么就选择导出什么的视图,你的需求你做主。

最后一步很简单,确定导出图纸就可以了。一直困扰你的问题如何通过Revit批量导出CAD图纸就解决了,喜欢这样简单的操作还能解决问题的文章么,多多关注我们吧。
BIM技术是未来的趋势,学习、了解掌握更多BIM前言技术是大势所趋,欢迎更多BIMer加入BIM中文网大家庭(http://www.wanbim.com),一起共同探讨学习BIM技术,了解BIM应用!
相关培训