revit轴网标高怎么画?关于Revit标高轴网的培训问题合集
01、结构平面不存在,平面视图如何创建
答:点击“视图”选项卡,“创建”面板,点击“平面视图命令”,找到结构平面选项,点击创建平面视图(如果要创建其他平面视图,那就点击其他平面视图,完成创建)。
应注意只有创建了对应标高,其对应的平面视图才可以创建,例如标高1,对应楼层平面标高1视图,或是结构平面标高1视图。

02、如何理解试图范围,怎么设置
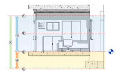
答:视图范围,简答理解,就是截取平面视图的某一部分空间位置,查看当前的平面视图。

①号线:主要视图范围的顶部高度位置。
③号线:主要视图范围的底部高度位置。
②号线:主要视图范围的剖切面高度位置,可以理解为眼睛所处高度位置。
④号线:视图深度的补充深度线的高度位置。
分别设置四个位置线的高度,来控制截取具体的空间视图。
⑤号蓝色区域:代表主要的视图范围,由①号线和③号线上下约束高度位置。
⑥号橙色区域:代表视图深度,是对主要视图范围的补充区域。
⑦号绿色区域:代表整个视图范围,上下由⑤号蓝色区域和⑥号橙色区域一起组成。由①号线和④号线上下约束整个视图范围的高度位置。
03、标头符号为什么不是三角形
答:可以设置标高的类型属性中的标头符号。

这个标头符号,可以通过载入默认的族库中提供的族文件使用。族文件路径为“注释”?“符号”?“建筑”?“标高标头_上”。
04、楼层平面和结构平面有什么区别吗
答:楼层平面,也就是建筑平面,满足建筑设计需求,比如室内房间的桌椅板凳布置,视图范围主要为室内地面靠上空间位置。

结构平面,满足结构施工需求,比如结构框架结构搭建,基础布置,视图范围主要为地面下部空间位置。

05、标高为什么修改一个,其他都变了
答:注意修改时,如果是同一类型的标高,会受同一类型的标高的类型参数的影响。比如均属于“上标头”的标高,当修改上标头的类型参数“标头符号”时,所有的上标头标高都会发生变化。

06、轴线在三层修改,其他也跟着变了
答:轴网是项目的平面定位基准,不是CAD的二维平面线段,Revit侧重的是三维模型设计,因此轴网也是三维的图元,具体的理解是垂直标高水平面的竖直面。这里的轴网贯穿一层,二层、三层等轴网高度达到的标高层,在三层调节轴网时,自然会影响到二层和一层。
07、多段线绘制轴网时,出现错误
答:多段线绘制轴网,是绘制轴网的一种方法,使用多段线时,只可以绘制一段非闭合路径(即不闭合的路径),不可以同时绘制两段线段,否则会出现错误。
Revit中文网作为国内知名BIM软件培训交流平台,几十万Revit软件爱好者和你一起学习Revit,不仅仅为广大用户提供相关BIM软件下载与相关行业资讯,同时也有部分网络培训与在线培训,欢迎广大用户咨询。
网校包含各类BIM课程320余套,各类学习资源270余种,是目前国内BIM类网校中课程最有深度、涵盖性最广、资源最为齐全的网校。网校课程包含Revit、Dynamo、Lumion、Navisworks、Civil 3D等几十种BIM相关软件的教学课程,专业涵盖土建、机电、装饰、市政、后期、开发等多个领域。
需要更多BIM考试教程或BIM视频教程,可以咨询客服获得更多免费Revit教学视频。
BIM技术是未来的趋势,学习、了解掌握更多BIM前言技术是大势所趋,欢迎更多BIMer加入BIM中文网大家庭(http://www.wanbim.com),一起共同探讨学习BIM技术,了解BIM应用!
相关培训