revit管道系统设置方法:Revit管道系统调整方法,后附卫浴、循环系统调整示例
文章来源:欧特克俱乐部
Revit会自动为项目中创建的系统计算具体的管道大小,您可以使用“调整管道大小”对话框指定借助摩擦和/或速度大小调整方法自动调整或计算管道各部分大小的方法。
使用“调整管道大小”对话框中的选项,可以选择方法本身(选择“仅”),或选择与其他方法组合(选择“与”或“或”)。
↓↓大小调整方法-摩擦

↓↓大小调整方法-速度

如果选择“与”,则管道的大小必须符合“摩擦”和“速度”值。如果选择“或”,则管道的大小必须仅符合上述值之一。下面的曲线显示使用“或”和“与”选项的差异:
↓↓摩擦()与速度()管道大小调整方法

↓↓摩擦()与速度()管道大小调整方法

速度影响噪波和腐蚀的方式
如果操作时数减少,则速度会增加,而腐蚀条件将始终基于下表。

接下来,我们来看一下卫浴系统和循环系统调整方法的结果。
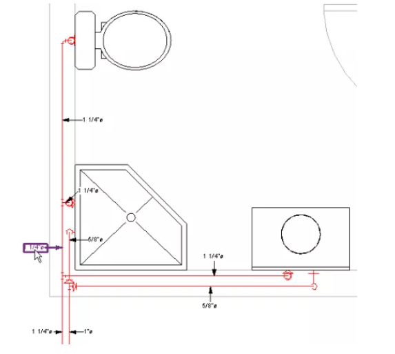
卫浴系统大小调整示例
摩擦和速度
↓↓调整大小之前

↓↓调整大小之后

仅限摩擦
↓↓调整大小之前

↓↓调整大小之后

摩擦和速度-较大支管
↓↓调整大小之前

↓↓调整大小之后

摩擦和速度-匹配连接件大小
↓↓调整大小之前

↓↓调整大小之后

仅限速度
↓↓调整大小之前

↓↓调整大小之后

系统检查器
↓↓单个管道

↓↓流向图

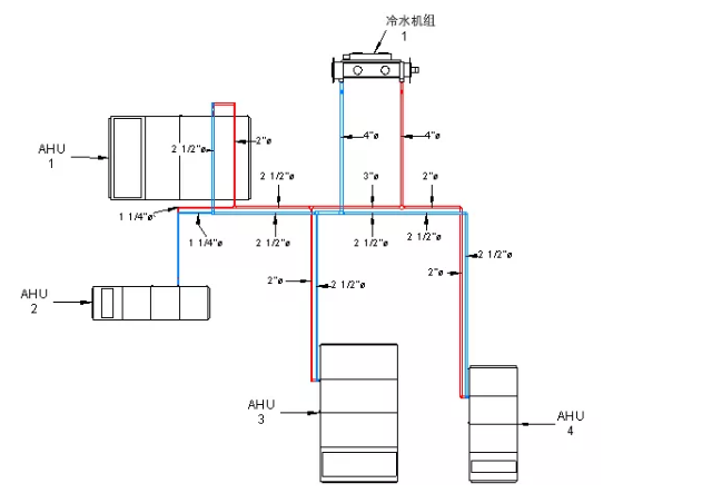
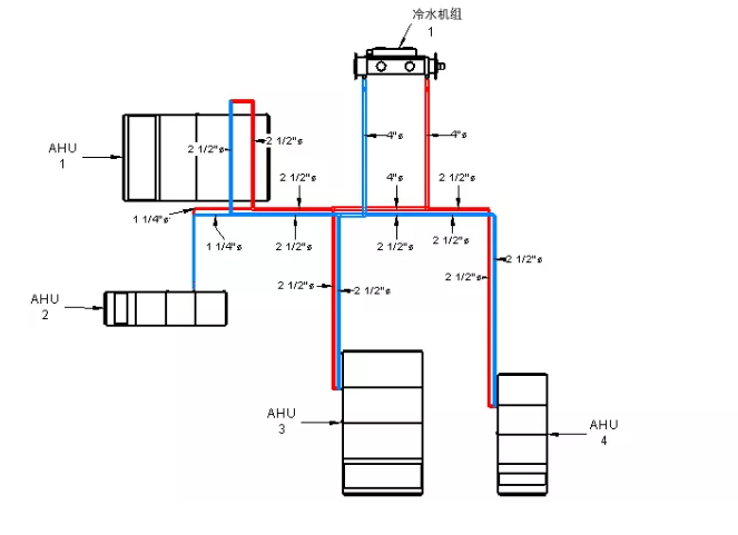
循环系统大小调整示例
仅限摩擦
↓↓调整大小之前

↓↓调整大小之后

仅限速度
↓↓调整大小之前

↓↓调整大小之后

摩擦和速度
↓↓调整大小之前

↓↓调整大小之后

更大连接件或计算
↓↓调整大小之前

↓↓调整大小之后

使连接件与管道大小匹配
↓↓调整大小之前

↓↓调整大小之后

Revit中文网作为国内知名BIM软件培训交流平台,几十万Revit软件爱好者和你一起学习Revit,不仅仅为广大用户提供相关BIM软件下载与相关行业资讯,同时也有部分网络培训与在线培训,欢迎广大用户咨询。
网校包含各类BIM课程320余套,各类学习资源270余种,是目前国内BIM类网校中课程最有深度、涵盖性最广、资源最为齐全的网校。网校课程包含Revit、Dynamo、Lumion、Navisworks、Civil 3D等几十种BIM相关软件的教学课程,专业涵盖土建、机电、装饰、市政、后期、开发等多个领域。
需要更多BIM考试教程或BIM视频教程,可以咨询客服获得更多免费Revit教学视频。
BIM技术是未来的趋势,学习、了解掌握更多BIM前言技术是大势所趋,欢迎更多BIMer加入BIM中文网大家庭(http://www.wanbim.com),一起共同探讨学习BIM技术,了解BIM应用!
相关培训