Revit云线批注怎么编辑文字?Revit云线修订编号与标注技巧
大家好,新一期的分享,来啦!
对于云线,我们一般都会在CAD图纸上加上编号或标注做一定的示意说明,Revit中这一部分除了需要用对应类别的标签族以外,同样也需要涉及到“修订”相关的内容设置。
今天,让我们来看一下如何进行操作吧!
1.创建云线标签族
通常我们的项目样板中不会包含“云线标签”族,“按类别标记”时会弹出提示,点击“是”寻找对应族文件:

从revit自带内容包内载入“注释”>“标记”>“建筑”下寻找“标记_修订.rfa”的族文件,路径:C:ProgramDataAutodeskRVT2020LibrariesChina注释标记建筑

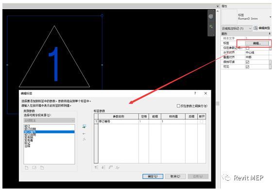
或者新建一个云线批注类别的标签族:

默认标签族只显示了“修订编号”信息:

通过编辑族中的标签,可添加和修改字段;
增加修订说明等信息时,可删除三角形外边线,以免文字溢出:

修改后的样式如下,但我们发现并无法在云线的属性上修改这些信息:

2.修订与云线的关系
revit中“云线批注”与“修订”是关联的:

因此云线的修订说明也在此进行定义:

包括编号的顺序、使用数字或英文编号等等:

当然我们也要下拉设置云线属性中对应的“修订”内容:

对于云线批注和修订说明的定义,实际用起来还是有一些歧义的。
大多数朋友用来描述某一个单点问题,而revit中的设计却是用来定义某一批次修订的问题,因此使用和管理起来还是不太方便!
来源:RevitMEP
Revit中文网作为国内知名BIM软件培训交流平台,几十万Revit软件爱好者和你一起学习Revit,不仅仅为广大用户提供相关BIM软件下载与相关行业资讯,同时也有部分网络培训与在线培训,欢迎广大用户咨询。
网校包含各类BIM课程320余套,各类学习资源270余种,是目前国内BIM类网校中课程最有深度、涵盖性最广、资源最为齐全的网校。网校课程包含Revit、Dynamo、Lumion、Navisworks、Civil 3D等几十种BIM相关软件的教学课程,专业涵盖土建、机电、装饰、市政、后期、开发等多个领域。
需要更多BIM考试教程或BIM视频教程,可以咨询客服获得更多免费Revit教学视频。
BIM技术是未来的趋势,学习、了解掌握更多BIM前言技术是大势所趋,欢迎更多BIMer加入BIM中文网大家庭(http://www.wanbim.com),一起共同探讨学习BIM技术,了解BIM应用!
相关培训