广联达BIM模板脚手架教程:从脚手架开始智能化应用,装配式安全性火速提升!

—装配式概念简介—
装配式建筑项目也叫做工业化建筑项目,是指通过现代化的制造、运输、安装和科学管理的大工业生产方式,来代替传统的建筑业中分散的、低水平的、低效率的手工业生产方式,它的主要标志是建筑设计标准化、构件生产工厂化、施工机械化和组织管理科学化。

在装配式建筑中需要提到的两个名词——装配率(PC率)和装配化率,其定义的不同在于:
装配率是指建筑单体范围内,预制构件混凝土方量占所使用的所有混凝土方量的比率称为装配率,通常按照正负零以上的部分核算,国家暂无统一的明确规定。装配率指标反映建筑的工业化程度。装配率越高,工业化程度也越高。
装配化率是指建筑单体达到装配率的面积占总的建筑面积的比率,是一个宏观的指标。
—装配式案例介绍—
下面以一个实际的装配式项目为例,介绍一下装配式项目的施工技术要点:
2.1工程概况
该项目为深圳市保障性住房项目,项目占地11164.76平米,总建筑面积为64050平方米,地下14000平方米,地上50050平方米,其中住宅47200平方米;单层层高2.8米,整个项目采用框架剪力墙结构设计。其中预制率达到47.2%、装配率达到74.2%左右。该项目地下和地上裙房结构采用全现浇施工工艺,地上标准层至结构顶层采用装配式吊装并现浇节点的形式进行布置。该项目采用EPC总承包模式,其总包范围包括标准化设计、工厂化生产、装配化施工、信息化管理、机电装修一体化,通过EPC管理的模式实现让设计、生产、施工各环节各专业有效协同,均衡设计、生产、施工,合理配置各项资源并且达到优化全产业链的效果。实现项目的整体效益最大化,品质更佳、质量更优、工期更短、成本更低等目标。


在该项目信息化管理方面,采用了目前国内先进的BIM技术,对项目内的每一块结构构件进行标准化统一建模并且形成了自己的BIM模型库。同时打造以BIM技术为基础的建筑+互联网的信息平台。通过BIM实现建筑在设计、生产、建造全产业链的信息交互和共享,全面提高全产业链的效率和项目管理水平。

2.2BIM技术在设计阶段中的应用
由于装配式建筑是由一个个构件组装而成,所以需要对相应的构件(如:叠合梁、叠合板、墙板、楼梯、阳台等)在设计阶段使用BIM技术进行深化设计及三维模型出图,如下图:


同时,在设计上,对项目内的机电管线进行BIM模型设计,并在设计阶段进行碰撞检查模拟、生成检测报告,如下图:

室内机电管线碰撞检查模拟
本项目采用的是精装修交付的模式,所以BIM精装修设计是本项目的一大亮点,此外,BIM精装也可用于进行装修方案招标。招标的厂家需要提交BIM装修的BIM模型和渲染效果方案,并以此给出相应报价,如下图:


2.3BIM技术在现场施工中的应用
在项目实际施工过程中,总承包单位可以根据施工过程中产生的相关信息实时输入到BIM平台,全面监控工程现场情况。拓展应用大量其他领域技术,包括物联网、RFID芯片、三维激光扫描技术、人脸识别技术等,可以进行现场定位和追踪工人,让项目管理者在远程操控管理项目,实现智能化管理。
2.4传统木模设计与施工
模板脚手架属于建筑工程中重要的危险性较大分部分项工程,其成本占整个项目费用的20%左右。在装配项目中一般采用两套模架系统,落地扣件式外架/木模板以及外爬架/铝合金模板。在地下室部分和地上裙房部分可以采用全现浇的木模架排布方式,架体布置可采用软件进行模拟排布,如下:

项目建模和外架生成
1)外架轮廓识别和生成架体
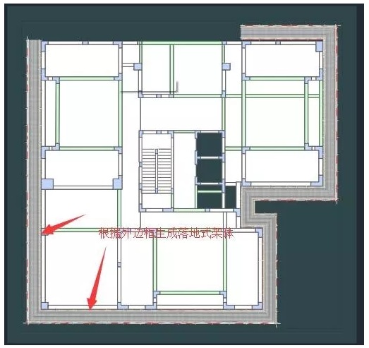
在地下部分,首先设定想要布置的外架参数,然后可以根据建筑的外边轮廓生成外架排布线,同时进行人工调节后自动生成落地式和悬挑式外架。如下:

外架参数调整

项目外架架体生成
然后对项目内部全现浇的部位进行主要构件(墙、梁、板、柱)的模板参数设置并生成架体排布,如下图:

构件参数设置

内架自动生成
对已经生成的内架进行必要的编辑排布,以满足现场实际立杆排布需要:

架体编辑
在对架体编辑后客户可以选择生成项目需要的架体专项施工方案和安全计算书,如下:

生成专项方案和计算书
模板脚手架属于危险性较大的分部分项工程,在运用BIM软件对模架进行智能化排布的计算后可以让客户更好的进行架体排布,让项目安全性得到良好的保证,同时也可以帮助客户节省项目的成本,提高项目的效率。

作者:贺骥文|广联达模架产品部高级商务经理
排版:阿丑
监制:式微
来源:BIM改变未来
BIM技术是未来的趋势,学习、了解掌握更多BIM前言技术是大势所趋,欢迎更多BIMer加入BIM中文网大家庭(http://www.wanbim.com),一起共同探讨学习BIM技术,了解BIM应用!
相关培训