X
返回顶部
当前位置: 首页> BIM资讯> BIM技术

Reivt教程:怎样在Revit中修改楼梯栏杆扶手草图以改变末端处的包络方式?

发布:中文网小编3号 浏览:1648人 分享
发布于:2020-05-07 14:24

    修改栏杆扶手草图,可以更改栏杆扶手从一个级别改变为另一个级别时在末端处的包络方式。

001.gif

    栏杆扶手是基于草图的图元,栏杆扶手的最终几何图形会受到多种因素的影响。草图定义了栏杆扶手的位置和长度,栏杆扶手类型的扶栏结构以及栏杆位置定义了栏杆扶手整体样式,栏杆扶手的主体控制了其坡度以及三维几何图形。在下面中,我们来学习以下过程的操作:

        了解扶手的各个部分

        编辑草图以创建扶手延伸

        创建回路内部扶手

        修改角位置

image.png

    ▲使用Revit2018录制。使用较新的软件版本时,可能会注意到在功能和用户界面方面有差别

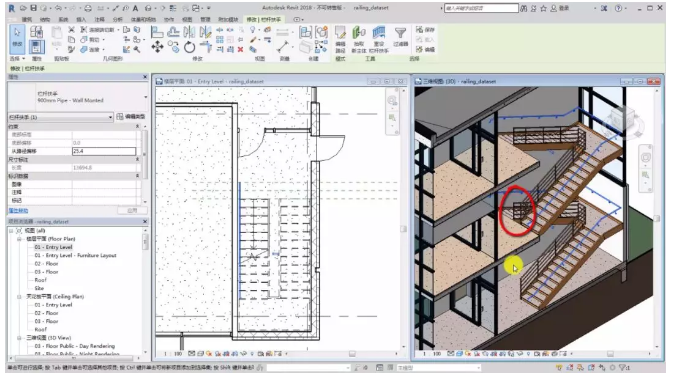
    若要编辑栏杆扶手草图,请选择栏杆扶手,然后在功能区的上下文选项卡中单击“编辑路径”。在此示例中,我们将对此多层楼梯上的默认栏杆扶手进行修改。

image.png

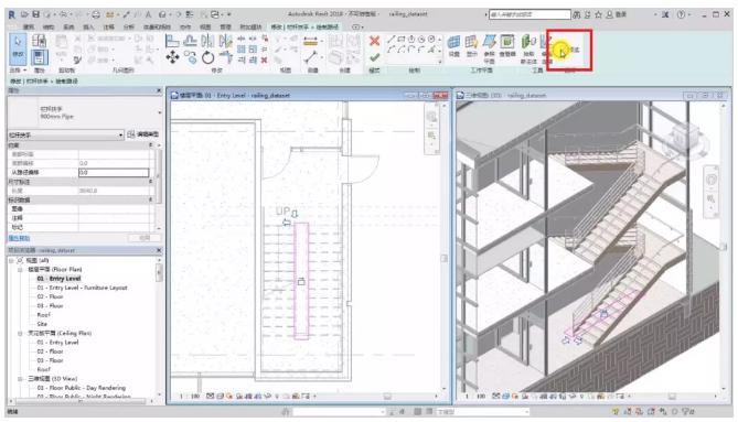
    靠墙式栏杆扶手需要在底部和顶部平台处有一定的延伸,选择一段栏杆扶手草图,然后使用夹点控制柄将栏杆扶手延伸至楼底末端之外。栏杆扶手草图末端附近的箭头控制柄会表示扶手栏杆的起点和终点,单击箭头可进行转换,在这种情况下,终点栏杆和起点栏杆的定义是相同的,因此更改起点和终点不会对栏杆扶手几何图形造成任何影响。单击“完成”结束栏杆扶手设置。

image.png

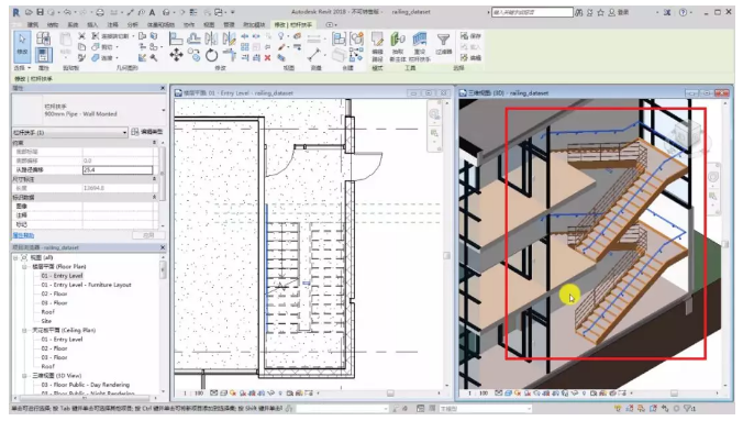
    为栏杆扶手绘制的线会沿着主体楼梯显示,如果主体未直接位于草图下方,则栏杆扶手会处于水平方向。

image.png

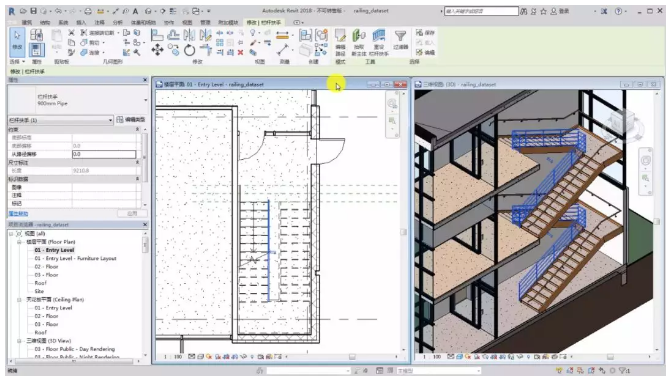
    楼梯的内侧栏杆扶手应当是连续的,不能在楼板相交处断开。选中栏杆扶手,然后单击“编辑路径”为栏杆扶手草图添加直线段,以闭合一侧的循环段,在栏杆扶手草图形成闭合循环时,会为草图添加一个额外的控制柄,此控制柄可更改放置了起点和终点箭头的转角。

image.png

    为了更好地了解该控件如何影响栏杆扶手几何图形,请在功能区上单击“预览”即可查看编辑草图后的栏杆扶手预览。单击“移动起点”控件,然后在三维视图中观察栏杆扶手几何图形如何受到影响。正确放置草图起点后,单击“完成”结束栏杆扶手设置。

image.png

    使用栏杆扶手草图中的预览控制柄以及起点/终点控制柄,可控制栏杆扶手在模型中的创建方式。

image.png

BIM技术是未来的趋势,学习、了解掌握更多BIM前言技术是大势所趋,欢迎更多BIMer加入BIM中文网大家庭(http://www.wanbim.com),一起共同探讨学习BIM技术,了解BIM应用!