X
返回顶部

Revit官方教程丨添加尺寸标注

发布:中文网小编 浏览:18293人 分享
发布于:2019-10-09 09:09

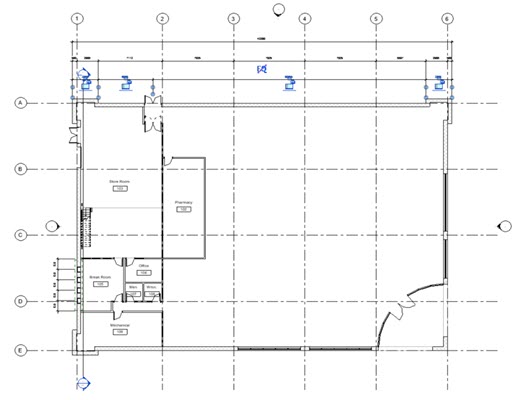
在本练习中,您将对建筑模型添加尺寸标注,以对主建筑的迹线进行尺寸标注。

目标


    [*]对建筑的宽度进行尺寸标注。
    [*]将相交轴网选项和对齐的尺寸标注结合使用,以在对外墙进行尺寸标注时自动包含轴网交点。
    [*]使用带对齐尺寸标注的“洞口”选项以在对外墙进行尺寸标注时自动包含窗洞口。

添加尺寸标注

    [*]打开项目 GSG_11_dimensions.rvt。
    [*]确认已打开“01 - Store Floor”楼层平面。
    [*]单击“注释”选项卡 “尺寸标注”面板 (对齐)。
    [*]在“选项栏”上,选择“墙面”,然后选择“单个参照点”作为“拾取”。
    [*]对建筑宽度进行尺寸标注:

      [*]选择西墙的外面。
      [*]选择东墙的外部面。
      [*]将光标移动到建筑的上方,然后单击以放置尺寸标注。



    标注轴网

      [*]在选项栏上:

        [*]单击“注释”选项卡 “尺寸标注”面板 (对齐)。
        [*]对于“拾取”,选择“整个墙”。
        [*]单击“选项”。
        [*]在“自动尺寸标注选项”对话框中,选中“相交轴网”,然后单击“确定”。

      [*]对南墙的窗洞口和交点进行尺寸标注:

        [*]单击插入北外墙。
        [*]单击东墙和西墙。
        [*]将光标移动到建筑的上方,然后单击以放置尺寸标注。


      [*]单击“修改”。

      标注洞口

        [*]在选项栏上:

          [*]单击“注释”选项卡 “尺寸标注”面板 (对齐)。
          [*]对于“拾取”,选择“整个墙”。
          [*]单击“选项”。
          [*]在“自动尺寸标注选项”对话框中,选择“洞口”,然后单击“确定”。

        [*]对南墙的窗洞口和交点进行尺寸标注:

          [*]单击插入北外墙。
          [*]单击东墙和西墙。
          [*]将光标移动到建筑的上方,然后单击以放置尺寸标注。


        [*]单击“修改”。


        BIM技术是未来的趋势,学习、了解掌握更多BIM前言技术是大势所趋,欢迎更多BIMer加入BIM中文网大家庭(http://www.wanbim.com),一起共同探讨学习BIM技术,了解BIM应用!