窗户平面图绘制方法使用CAD优化

本文概述:CAD优化是建筑设计中窗户平面图绘制方法的一个关键环节,通过对窗户设计进行优化,可以提高设计效率、降低成本,并增强最终建筑结构的功能性和美观性。
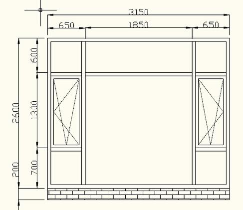
在建筑设计中,**窗户平面图绘制**是一个至关重要的阶段。一个好的设计不仅能提升建筑物的外观,还能改善室内采光和通风情况。因此,在这一环节中使用计算机辅助设计(CAD)软件进行优化,可以显著提高设计质量及效率。### CAD优化的重要性首先,CAD软件为设计师提供了强大的工具集。这些工具能够帮助设计师精确地绘制复杂的几何形状,并进行细致的调整。通过这种方式,设计师可以确保其窗户设计符合建筑标准,同时满足客户的个性化需求。而且,CAD可以快速生成多种设计方案供选择,从而缩短设计周期并加快决策过程。### 窗户设计的灵活性使用CAD进行窗户设计具有显著的**灵活性**。设计师可以随时修改设计,尝试不同的尺寸、形状和材料组合,以便找到最优的解决方案。此外,CAD允许用户轻松创建及管理各种窗户样式,如推拉窗、悬窗或旋转窗等。在设计过程中,用户还可以直接观察窗户在建筑整体中的效果,实时调整设计以达到最佳协调。### 提升设计精度精准的设计是建筑安全和耐用性的基础。通过CAD软件,设计师可以将窗户尺寸控制到毫米级别。如此高的**精度**对于维护建筑整体结构的稳定性至关重要。同时,CAD在识别潜在设计错误方面也非常出色,使得设计师能够在项目早期阶段就发现并解决问题,避免后续施工中的返工或延迟。### 节约成本和资源合理使用CAD优化窗户设计还有助于降低项目的成本和资源消耗。通过软件的模拟功能,设计师可以预测窗户在不同天气条件下的性能表现,这有助于选择最合适的材料和构造方式,减少不必要的浪费。此外,CAD在生成材料清单和采购计划方面同样表现出色,进一步优化了资源管理。### 新技术的应用随着技术的发展,CAD软件不断融入新的技术。其中之一就是建筑信息模型(BIM)的整合。BIM是一种基于3D模型的智能化数据平台,能够提供更全面、更准确的数据支持。结合BIM技术后,CAD设计可以实现建筑各部分之间的无缝对接,确保窗户设计与其他结构元素完美匹配。另外,大数据分析和人工智能也开始进入CAD优化领域。通过这些技术,设计师可以从庞大的数据库中获取历史设计案例和成功经验,从而做出更加明智的设计决策。人工智能还能够自动检测窗户设计中的不足之处,并提出改进建议,提高设计的有效性和可靠性。### 实际应用案例在实际应用中,多家建筑公司已经通过CAD优化窗户设计取得了显著成效。例如,某知名建筑事务所利用CAD软件设计了一系列兼具现代感和传统美学的窗户,为一座商业综合体增添了独特魅力。这些窗户不仅提升了建筑的颜值,还大幅降低了项目的总体能耗,充分体现了CAD优化的优势。总之,CAD优化窗户平面图绘制方法是当代建筑设计中的必备技术。它通过提升设计效率、确保精度以及降低成本等诸多方式,助力建筑行业迈向更高水平的发展。随着科技的不断进步,未来CAD优化将在建筑设计中发挥越来越重要的作用,成为实现可持续发展的坚实基础。
BIM技术是未来的趋势,学习、了解掌握更多BIM前言技术是大势所趋,欢迎更多BIMer加入BIM中文网大家庭(http://www.wanbim.com),一起共同探讨学习BIM技术,了解BIM应用!
相关培训