下载app免费领取会员
最近呢COCO在准备参加BIM等级考试,所以要拼命练习啊,练习就会有收货咯!
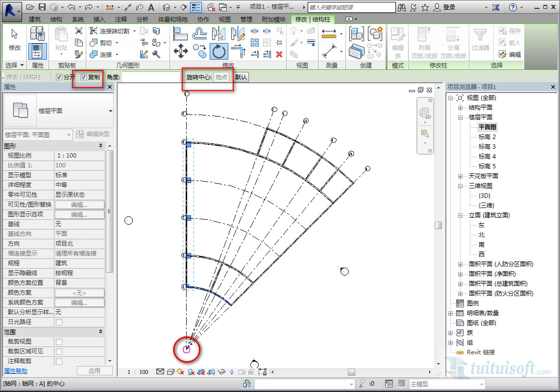
我在画第六期的最后一大题时发现了一个新招呢,,,铛铛铛铛那就是旋转命令也可以用来复制呢!
首先让我们来看一下题目。

我要做的就是呢就是画出5轴的柱子(截图软件居然不可以对框进行旋转,真是大Bug 啊,请忽略我画出来的弯弯扭扭的线),可是,我是谁啊,COCO啊,我这么懒肯定不愿意一个一个重新画啊(你肯定又要想了,直接用镜像不就行了,可是我笨啊,当时没想到啊)所以,就发现了旋转的奥秘咯!
我们框选需要复制的对象,选择旋转

勾选复制,旋转中心:地点, 选中旋转中心。

选择起点终点,就好啦!!

最后,希望跟我一起备战考试的人都可以取得一个好的成绩。
本文版权归腿腿教学网及原创作者所有,未经授权,谢绝转载。
上一篇:如何在明细表中添加图像?
推荐专题