下载app免费领取会员
上次我讲到了用平台画三角形楼梯的方法,我呢还说等着大家告诉我新的方法呢!
结果呢,哎,好像都没人看我的文章555~~我只能自力更生了。![]()
之前呢,我基本都是用构建绘制楼梯的,对于草图楼梯基本没用过,我们公司的大神给我打开了新世界的大门啊,现在想想之前用平台画真是太弱智了,还要上下锁定标高,不是有那么一句话吗,回看年轻的自己,就觉得在看一个傻子。![]()
![]()
言归正传,我们来画图吧!!
我们打开revit选择楼梯,草图楼梯,调整类型属性(这里就不再放CAD图了,详情请看我上一篇文章。)
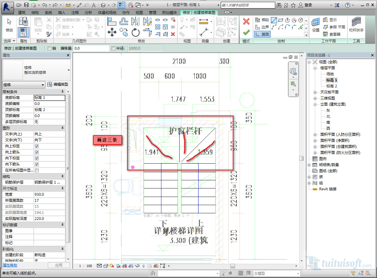
我们选择梯段按CAD图绘制楼梯(我们先忽略他们平台部分三角形的楼梯)画出来大概是这样

接着,我们删除中间平台的线条(哈哈哈,我用鼠标画不好直线,大家不要笑![]()
)

接着,用踢面来绘制三角形的部分。

点击确定,这样楼梯就绘制好啦!是不是特别简单呢。

关于栏杆扶手,因为,这个楼梯转角部分角度太大,所以栏杆扶手无法自动生成,所以需要另画呢!
再来说一下这两种画法视觉上的区别吧,草图画法底部是非常顺滑的连接的,而用平台画的楼梯则是棱角分明。
关于楼梯,还有很多东西值得我去学习,我会及时跟进的,欢迎大家留言
本文版权归腿腿教学网及原创作者所有,未经授权,谢绝转载。
上一篇:什么?你想在手机上看rvt模型?
推荐专题